Fotos: Ivan Nemec
Visualisierungen: blfp®



Fotos: Ivan Nemec
Visualisierungen: blfp®
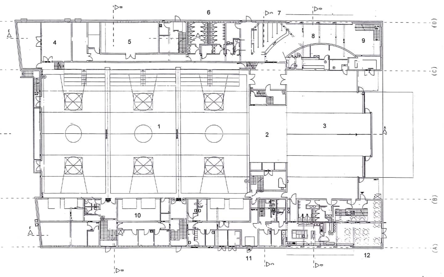
Das Bürgerhaus ist das Herzstück des dreiseitig bebauten Stadtplatzes. Die äußere Linie des Gebäudemittelteiles spiegelt die Grundstückstopographie wieder. In diesem Baukörper befinden sich der Festsaal und die Sporthalle mit dazwischen liegendem Bühnenbereich. Er wird von zweigeschossigen Seitenflügeln mit Jugendclub und Sportlernebenräumen eingerahmt.



Hauptsitz
61169 Friedberg
+49 6031 6002-0
Niederlassung
35392 Gießen
+49 64120 10 97-0
Hauptsitz Friedberg
Straßheimer Str. 7
61169 Friedberg
Route berechnen
Besucherparkplätze befinden sich bei der Einfahrt auf der rechten Seite.
Mit öffentlichen Verkehrsmitteln sind wir fußläufig über den Bahnhof Friedberg Süd (1000 m, Bushaltestelle Friedberg Straßenmeisterei) und über die Buslinien FB-31 (350 m, Haltestelle Grüner Weg), FB-40, FB-70, FB-71 und FB-72 zu erreichen.
Niederlassung Gießen
Leihgesterner Weg 37
35392 Gießen
Route berechnen
Gekennzeichnete Besucherparkplätze befinden sich im Hinterhof der „Alten Brauereihöfe“. Über das Treppenhaus im Innenhof finden Sie uns im 1. Obergeschoss.
Mit öffentlichen Verkehrsmitteln sind wir fußläufig über die Buslinien 3 und 13 zu erreichen – Haltestelle Röntgenstraße.
Hauptsitz Friedberg
Straßheimer Str. 7
61169 Friedberg
Route berechnen
Besucherparkplätze befinden sich bei der Einfahrt auf der rechten Seite.
Mit öffentlichen Verkehrsmitteln sind wir fußläufig über den Bahnhof Friedberg Süd (1000 m, Bushaltestelle Friedberg Straßenmeisterei) und über die Buslinien FB-31 (350 m, Haltestelle Grüner Weg), FB-40, FB-70, FB-71 und FB-72 zu erreichen.
Niederlassung Gießen
Leihgesterner Weg 37
35392 Gießen
Route berechnen
Gekennzeichnete Besucherparkplätze befinden sich im Hinterhof der „Alten Brauereihöfe“. Über das Treppenhaus im Innenhof finden Sie uns im 1. Obergeschoss.
Mit öffentlichen Verkehrsmitteln sind wir fußläufig über die Buslinien 3 und 13 zu erreichen – Haltestelle Röntgenstraße.
Hauptsitz
61169 Friedberg
+49 6031 6002-0
Niederlassung
35392 Gießen
+49 64120 10 97-0
|
Sie erreichen uns zu unseren Öffnungszeiten:
|
|
|---|---|
|
montags - donnerstags
|
8:00 - 17:00 Uhr
|
|
freitags
|
8:00 - 14:00 Uhr
|